立即預約設計師:

您已預約成功,我們會在24小時內與您取得聯系。感謝您關注居然樂屋裝飾,祝您生活愉快!
專業(yè)設計師為您量身定制

免費獲取裝修報價

謝佳-牛街西里簡歐混搭121~180平米
| 樓盤名稱:牛街西里 | 案例風格:簡歐混搭 | 案例戶型:三居/四居 |
| 戶型面積:121~180平米 | 造價:1200.00 | 所在城市: |
| 服務店面:北四環(huán)三店 | 設計師:謝佳 | 施工工長:某 |
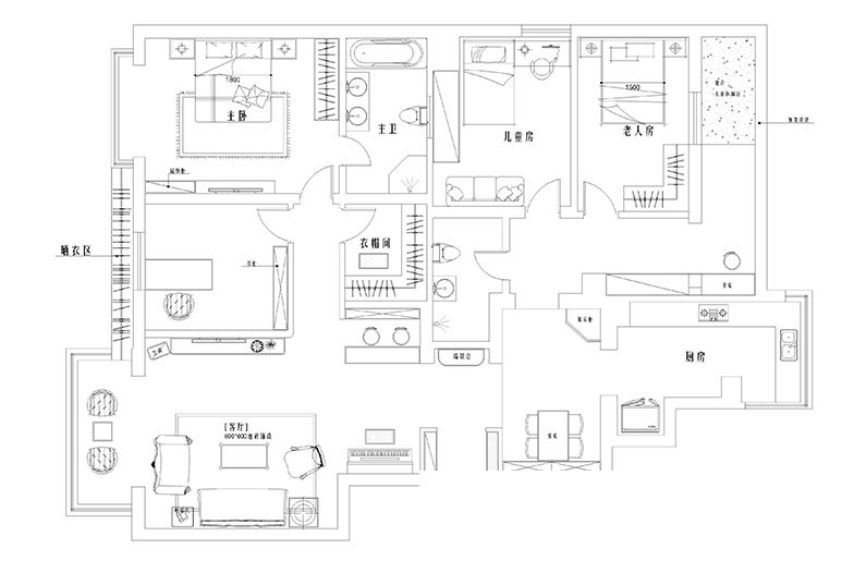
戶型:四居兩衛(wèi)
使用面積:159㎡
根據客戶需求,本案例空間居住成員為:夫妻二人和上小學的女兒,以及男方父母。在空間布局上墻體稍作改動,在門廳區(qū)留出了吧臺的空間。將兒童房和老人房設置在相鄰的兩個臥室區(qū)域,以方便老人照顧小孩;并且在老人房外面的陽臺上增加地臺,為小孩提供玩耍區(qū)域,達到夫妻二人上班時,老人方便照看小孩的目的。將次臥調整為書房,以增加夫妻二人辦公閱讀的空間。由于客戶比較喜歡歐式風格,房間以白色調為主,咖色為輔,黑色作為局部點綴,去除掉傳統(tǒng)歐式的復雜繁瑣,使空間的現代化氣息更弄一些,以避免長期居住會產生視覺疲勞,讓客戶的家更溫馨!綜上所述:此方案定義為簡歐風格。






已有345623人成功取得報價