立即預約設計師:

您已預約成功,我們會在24小時內與您取得聯系。感謝您關注居然樂屋裝飾,祝您生活愉快!
專業(yè)設計師為您量身定制

免費獲取裝修報價

康樂小區(qū) 楊小紅現代120平米以下
| 樓盤名稱:康樂小區(qū) | 案例風格:現代 | 案例戶型:一居/兩居 |
| 戶型面積:120平米以下 | 造價:1.00 | 所在城市: |
| 服務店面:北四環(huán)二店 | 設計師:楊小紅 | 施工工長:某 |
所在小區(qū): 康樂小區(qū)
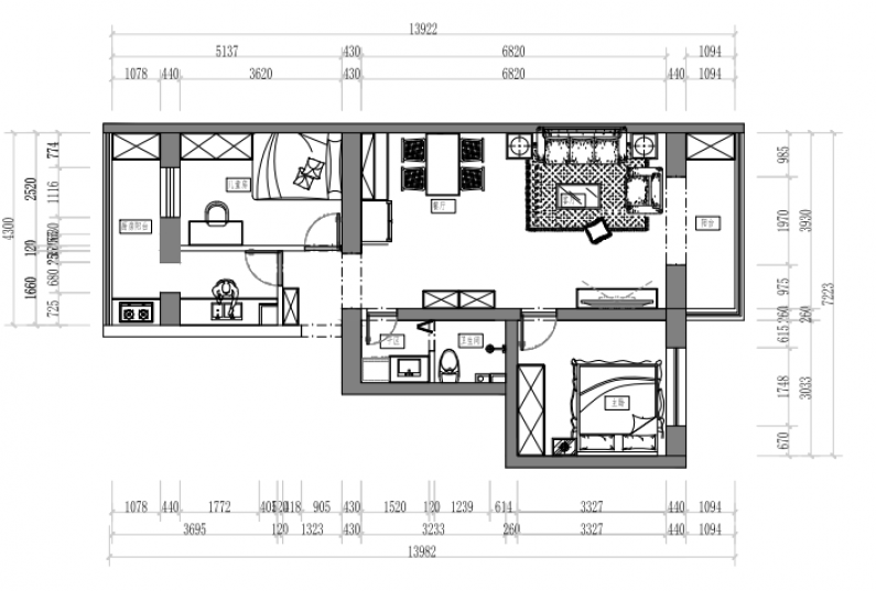
建筑面積:85㎡
工程造價:7萬
戶型:兩室一廳一廚一衛(wèi)
戶型優(yōu)點: 南北通透,空間方正
動靜分區(qū)合理
設計思路:客戶一家三口,孩子平時不在家 ,夫妻兩人
業(yè)主偏愛中式的空間氛圍及明亮的色彩,居家以現代性為空間基調。
客廳,地面通鋪灰色瓷磚,空間布局對稱平和,色彩一深一淺,餐廳和客廳整體風格保持一致,整個公共區(qū)域南北通透。

餐廳區(qū)域的柜子,基本可以滿足日常餐廳使用的日常儲物需求,做了整面墻的柜子,下半柜是屬于放類似工具儲物區(qū),上面的柜子放紙巾零食飲料常用區(qū),這樣的分區(qū)讓空間更加整潔和實用。
整體空間溫和的暖色乳膠漆塑造空間恬靜而溫暖氣質。
所用主材品牌:
瓷磚:依諾 櫥柜:志邦 潔具:箭牌 木門:TATA
衣柜:志邦

已有345623人成功取得報價