立即預約設計師:

您已預約成功,我們會在24小時內與您取得聯(lián)系。感謝您關注居然樂屋裝飾,祝您生活愉快!
專業(yè)設計師為您量身定制

免費獲取裝修報價

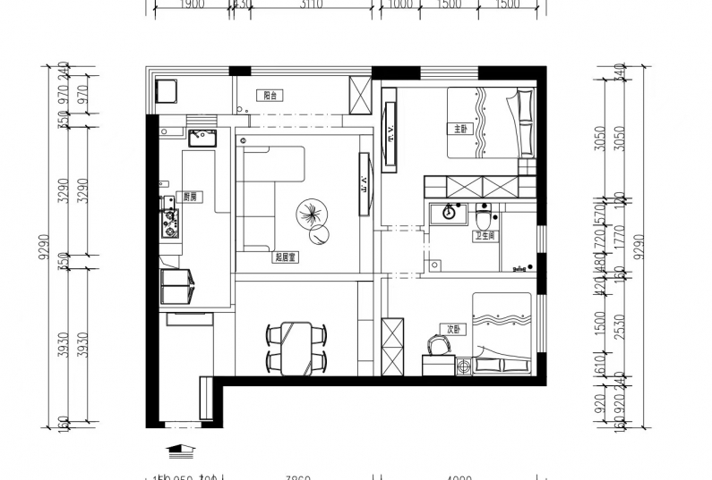
苗迪 十里河三部現代輕奢120平米以下
| 樓盤名稱: | 案例風格:現代輕奢 | 案例戶型:一居/兩居 |
| 戶型面積:120平米以下 | 造價:1.00 | 所在城市: |
| 服務店面:十里河二店 | 設計師:苗迪 | 施工工長:某 |
整體方案設計以現代輕奢為主,業(yè)主居住需求三口之家,兩居空間為增加空間感,劃分了區(qū)域,為更彰顯現代感電視背景墻選擇磚上墻,磁吸軌道燈,埡口選擇不銹鋼材質,全屋為增加空間選擇定制柜


廚房長條形,所以采用900*900磚上墻增加視覺空間感,透明玻璃格門

衛(wèi)生間因為空間改造分區(qū)問題,做了壁掛坐便和淋浴房,為契合現代輕奢感選用灰色墻磚黑色門和淋浴房門,為不使整體空間暗,用藍色配金色浴室柜做配色





已有345623人成功取得報價